320, 68, 7930 Bowness Road NW

Office For Lease in Bowness, Calgary NW

$12.00/Sqft./Annually
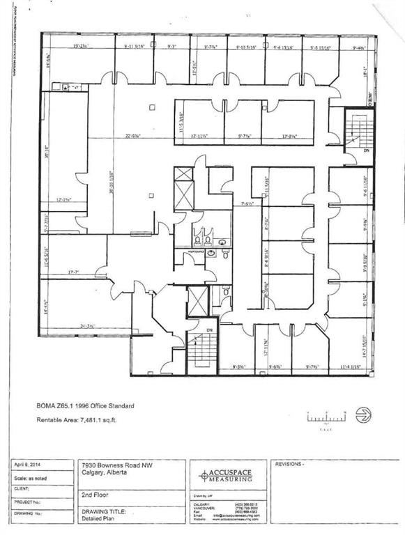
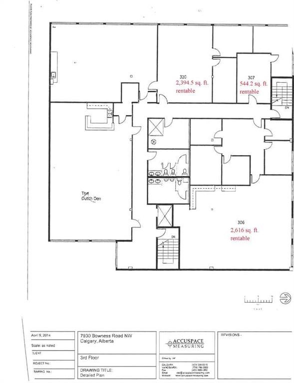
Entire 2nd floor, 7,481 sq. ft. of secure well developed space with abundant natural light, former formerly occupied by Child Family services space. 3rd floor suite of 2,394 sq. ft., can be subdivided. Elevator access, excellent parking, below market rates including utilities, and great Bowness Road location. 3 story retail /office building with elevator access. Landlord completing upgrades to common areas. Accessible location with public transit and close proximity to Hwy 1, Sarcee Trail, Stoney Trail, Crowchild Trail and Downtown. Ample front parking.
Address
320, 68, 7930 Bowness Road NW
Lease Price
12.00
Lease Unit
Sqft.
Lease Term
Annually
Property Type
Commercial
Type of Dwelling
Office
Transaction Type
Lease
Area
Calgary NW
Sub-Area
Bowness
Year Built
1978
MLS® Number
A2122445
Listing Brokerage
Century 21 Bamber Realty LTD.
Postal Code
T3B0H3

Request More Info or a Showing

Prestige Commercial Group

Remax Complete Realty

Office: 403-204-9323

Email Directly

#320, 180 Quarry Park Boulevard SE Calgary Alberta T2C 3G3