2182 39 Avenue NE

Office For Lease in North Airways, Calgary NE

$6.50/Sqft./Annually
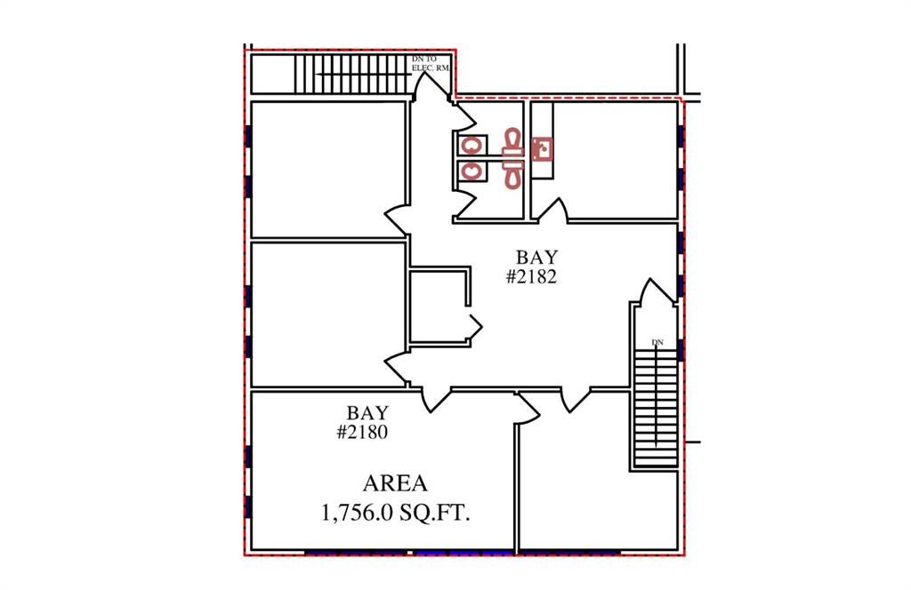
LEASE RATES REDUCED STARTING AT $6.50 PSF + STEPS! 1,756 Sq. Ft of second floor office northeast location located by near 19 Street NE and 39 Avenue NE. The office space features reception / open concept area, three large private offices, one large office/boardroom, kitchenette area, and two washrooms. This space includes one assigned parking stall. Several cafes, restaurants, and many other amenities located by 32 Avenue NE and McKnight Boulevard NE. Close proximity to McKnight Boulevard, Barlow Trail NE, 32 Avenue NE and Deerfoot Trail NE. The Lease rates are now reduced from $9.00 PSF to 6.50 PSF + steps and the Operating Costs is $9.62 PSF (Total of $16.12 PSF) - approximately $2,400 per month. Utilities are included in the Operating Costs.
Address
2182 39 Avenue NE
Lease Price
6.50
Lease Unit
Sqft.
Lease Term
Annually
Property Type
Commercial
Type of Dwelling
Office
Transaction Type
Lease
Area
Calgary NE
Sub-Area
North Airways
Year Built
1976
MLS® Number
A2178275
Listing Brokerage
CDN Global Advisors Ltd.
Postal Code
T2E 6P7

Request More Info or a Showing

Prestige Commercial Group

Remax Complete Realty

Office: 403-607-5811

Email Directly

#320, 180 Quarry Park Boulevard SE Calgary Alberta T2C 3G3