D, 9820 100 Avenue

Office For Lease in Central Business District, Grande Prairie

$20.00/Sqft./Annually
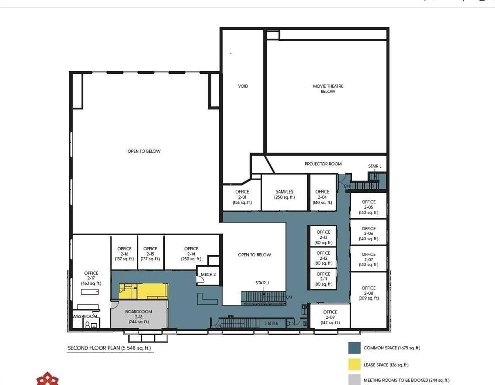
A Unique leasing opportunity consisting of 5,548 sq.ft. of professional second-floor office space with 12 + private offices, a large meeting space or flex area, and a meticulous boardroom. Common areas are available to use at your leisure, which provides incredible built-in value with plenty of room to grow. The options are endless and the Landlord is willing to get creative with ideas that make the space successful for your business. Parking is located directly adjacent to the building with signage options available on 100 Ave. This one of a kind office space is beyond compare and a must-see for any business in the market for office space. Office furniture can be negotiable and quick possession is available. Call your Commercial Realtor® today to book a showing.
Address
D, 9820 100 Avenue
Lease Price
20.00
Lease Unit
Sqft.
Lease Term
Annually
Property Type
Commercial
Type of Dwelling
Office
Transaction Type
Lease
Area
Grande Prairie
Sub-Area
Central Business District
Year Built
1974
MLS® Number
A2185624
Listing Brokerage
RE/MAX Grande Prairie
Postal Code
T8V 0T8

Request More Info or a Showing

Prestige Commercial Group

Remax Complete Realty

Office: 403-204-9323

Email Directly

#320, 180 Quarry Park Boulevard SE Calgary Alberta T2C 3G3