9820 100 Avenue

Office For Sale in Central Business District, Grande Prairie

$3,400,000
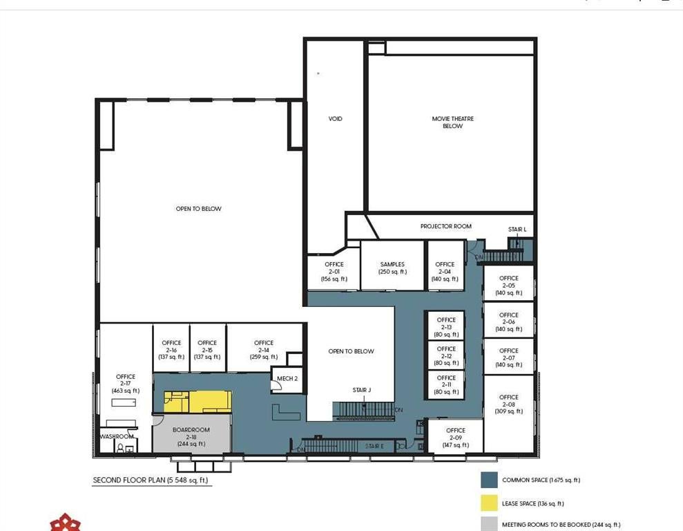
This is an incredible opportunity to purchase 26,205 SF of professional office space that has undergone a complete renovation in the heart of Grande Prairie. This former movie theater turned office, is a unique landmark property centrally located in the Grande Prairie area. It is currently being offered for sale at a fraction of the cost of new construction. The building has frontage exposure on 100 Avenue with 28 designated parking stalls and plenty of public parking in the vicinity. It is comprised of a spacious reception area, 32 designated offices, two boardrooms, staff lounge, two bull pen area's which can easily accommodate up to 26 additional work area's as your business continues to grow and a fully functional theater. This property literally has it all and should not be overlooked. Call your Commercial Realtor® today to book a showing.
Address
9820 100 Avenue
List Price
$3,400,000
Property Type
Commercial
Type of Dwelling
Office
Transaction Type
Sale
Area
Grande Prairie
Sub-Area
Central Business District
Lot Size
15707 Ac.
Year Built
1979
MLS® Number
A2184190
Listing Brokerage
RE/MAX Grande Prairie
Postal Code
T8V 0T8
Zoning
CC

Request More Info or a Showing

Prestige Commercial Group

Remax Complete Realty

Office: 403-204-9323

Email Directly

#320, 180 Quarry Park Boulevard SE Calgary Alberta T2C 3G3