200, 14 Crystalridge Drive

Office For Sale in Crystalridge, Okotoks

$625,000
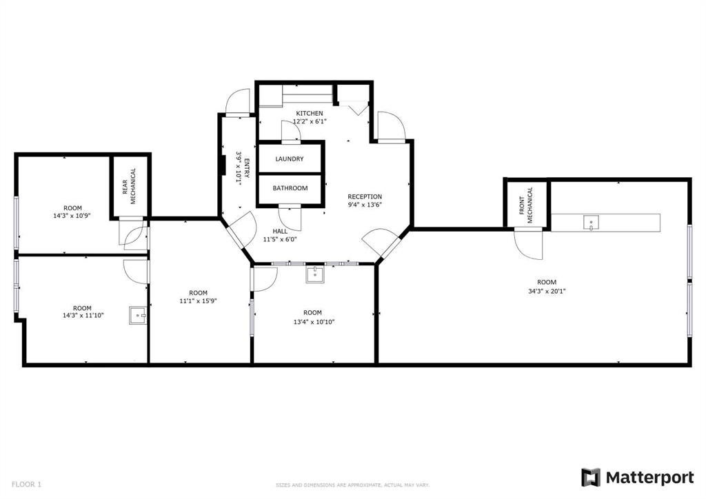
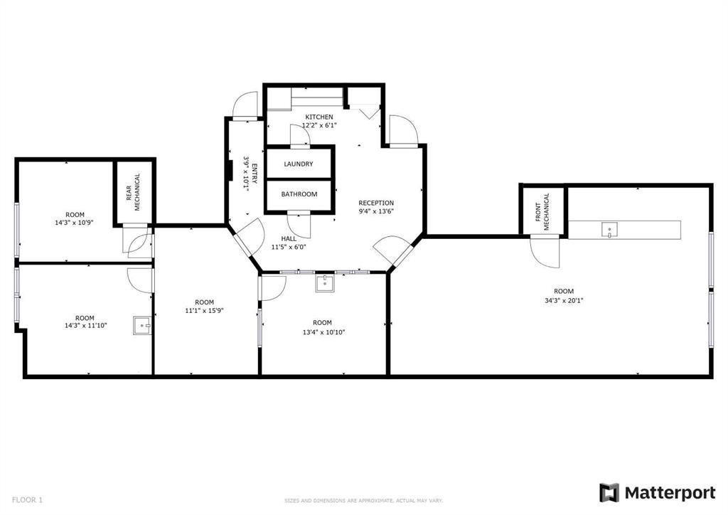
Fantastic opportunity to own half of the 2nd floor of this great commercial unit. This unit has lots of potential for a multitude of uses, at one time it was split into 2 tenants and could easily be split again if you wanted to have a smaller space for your business and rent out the other side. This unit is currently being used a spa and salon, please note the fixtures belong to the tenant and will be removed. This is a great location with lots of natural light, your own heating and cooling controls. There is a reception with a kitchen area and a washroom with tiled flooring (there is potential for a 2nd washroom but it is currently being used as the laundry). There is a huge room with large windows (this is currently used for the hairdressing stations), there are 3 private rooms and another area that would make a great shared space. The unit has modern paint colours and gorgeous flooring. There is additional storage space and an entrance to the back staircase. The building is well maintained and there is lots of parking for your customers. This is a great unit in a fabulous location! View 3D Tour.
Address
200, 14 Crystalridge Drive
List Price
$625,000
Property Type
Commercial
Type of Dwelling
Office
Transaction Type
Sale
Area
Okotoks
Sub-Area
Crystalridge
Year Built
2007
Maint. Fee
$817.77
MLS® Number
A2196830
Listing Brokerage
RE/MAX First
Postal Code
T1S 2C3
Zoning
IBP

Request More Info or a Showing

Prestige Commercial Group

Remax Complete Realty

Office: 403-204-9323

Email Directly

#320, 180 Quarry Park Boulevard SE Calgary Alberta T2C 3G3