1009 Main Street

Industrial For Sale in Ohaton

$149,900
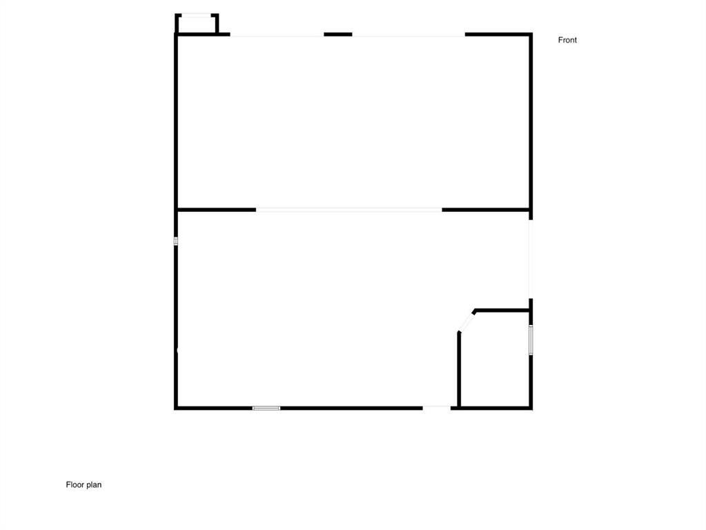
Looking for an affordable commercial space within a 10 minute radius from Camrose? This 2600+ square foot metal building offers a versatile workspace with durable concrete floors and two loading doors conveniently located on the side of the building. Situated on a 100 x 120 lot, there is ample space for outdoor storage, parking, or future expansion. Whether you're looking to establish a new business, expand operations, or invest in commercial property, this location provides easy access to Camrose while offering the flexibility and functionality you need.
Address
1009 Main Street
List Price
$149,900
Property Type
Commercial
Type of Dwelling
Industrial
Transaction Type
Sale
Area
Ohaton
Lot Size
12000 Ac.
Year Built
1976
MLS® Number
A2193708
Listing Brokerage
The Realty Bureau
Postal Code
T0B 3P0
Zoning
UC - urban commercial

Request More Info or a Showing

Prestige Commercial Group

Remax Complete Realty

Office: 403-204-9323

Email Directly

#320, 180 Quarry Park Boulevard SE Calgary Alberta T2C 3G3